中国青年网海南藏族自治州7月19日电 (通讯员 周嘉雯 徐瑛姿 汤钰璇)
近日,江苏大学“设计赋能企业”社会实践团队一行来到了青海省海南州贵德县青海青藏华峰中蜂蜂业有限公司,深入走访调研企业,开展为期十天的实地考察。期间,团队成员与企业老总、养蜂专家面对面,深入了解企业文化,亲临养蜂基地、产品加工场所等,分析企业发展“痛难点”。经过深入调研,团队利用专业特长,帮助企业设计了500平米展厅实施方案,获得企业初步认可;此外,团队发挥集体优势,建立“网络直播平台”,围绕文案编写、策划营销策略、设计直播场景等内容,将暑期社会实践活动与乡村振兴密切结合,跑出“加速度”。
据了解,此次实践活动的落地是在前期博业体育(China)官方网站与青海省贵德县建立了校地战略合作关系的延伸,也是江苏大学积极响应国家乡村振兴战略的生动实践。

图为团队成员走访参观调研企业需求。中国青年网通讯员 周嘉雯 供图

图为工作人员为团队成员讲解企业发展现状。中国青年网通讯员 周嘉雯 供图

图为团队成员了解蜂箱结构。中国青年网通讯员 周嘉雯 供图

图为工作人员为团队成员参观企业加工车间。中国青年网通讯员 周嘉雯 供图

图为蜂蜜存放仓库。中国青年网通讯员 周嘉雯 供图

图为团队成员深入养蜂基地。中国青年网通讯员 周嘉雯 供图

图为团队成员深入养蜂基地。中国青年网通讯员 周嘉雯 供图

图为团队成员向创业老总汇报设计成果。中国青年网通讯员 徐瑛姿 供图

图为团队成员向创业老总汇报设计成果。中国青年网通讯员 徐瑛姿 供图

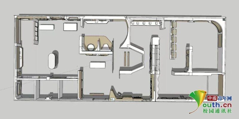
图为团队成员设计展厅初稿。中国青年网通讯员 徐瑛姿 供图

图为团队成员设计展厅初稿。中国青年网通讯员 徐瑛姿 供图

图为团队成员设计展厅初稿。中国青年网通讯员 徐瑛姿 供图

图为团队成员利用网络直播宣传各类蜂蜜产品。中国青年网通讯员 汤钰璇 供图

图为团队成员利用网络直播宣传各类蜂蜜产品。中国青年网通讯员 汤钰璇 供图

图为团队成员利用网络直播宣传各类蜂蜜产品。中国青年网通讯员 汤钰璇 供图

图为团队成员与企业老总合影留念。中国青年网通讯员 汤钰璇 供图
原文链接:https://xiaoyuan.cycnet.com.cn/s?signature=6B3MvlKp05kgOXPA9oG7nxgVmHyexo21erYEjxzQLWmw8DnyJb&uid=6751636&phone_code=4f396ffc8d46ad0b3710d73224e98a66&scid=1565390&time=1689948248&app_version=(null)&sign=e04323f9ac5750a063b1d4abdb076b2e#